S.I. No. 447/2025 - Intoxicating Liquor Act 2003 (Section 21) (Croke Park, Dublin) Regulations 2025
Notice of the making of this Statutory Instrument was published in | ||||||||||||||||||||
“Iris Oifigiúil” of 3rd October, 2025. | ||||||||||||||||||||
I, PATRICK O’DONOVAN, Minister for Culture, Communications and Sport, in exercise of the powers conferred on me by section 21 of the Intoxicating Liquor Act 2003 (No. 31 of 2003) and the Tourism and Sport (Transfer of Departmental Administration and Ministerial Functions) Order 2020 ( S.I. No. 356 of 2020 ) (as adapted by the Tourism, Culture, Arts, Gaeltacht, Sport and Media (Alteration of Name of Department and Title of Minister) Order 2025 ( S.I. No. 236 of 2025 )) hereby make the following regulations: | ||||||||||||||||||||
1. These Regulations may be cited as the Intoxicating Liquor Act 2003 (Section 21) (Croke Park, Dublin) Regulations 2025. | ||||||||||||||||||||
2. In these Regulations “Act of 2003” means the Intoxicating Liquor Act 2003 (No. 31 of 2003). | ||||||||||||||||||||
3. The arena or stadium known as Croke Park, situated at Jones’ Road in the City of Dublin, is designated as a national sporting arena. | ||||||||||||||||||||
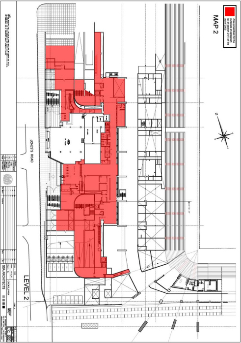
4. The areas indicated by the colour red on the maps of the designated national sporting arena referred to in Regulation 3 and set out in Schedule 1 are prescribed for the purposes of section 21(4)(a) of the Act of 2003. | ||||||||||||||||||||
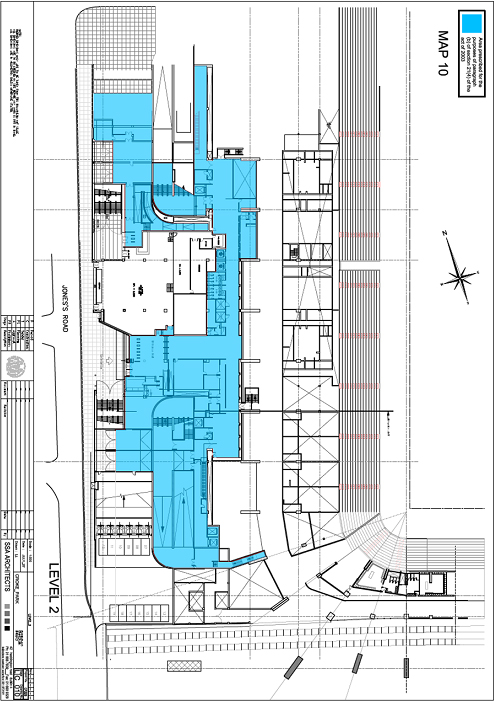
5. The areas indicated by the colour blue on the maps of the designated national sporting arena referred to in Regulation 3 and set out in Schedule 2 are prescribed for the purposes of section 21(4)(b) of the Act of 2003. | ||||||||||||||||||||
6. The Intoxicating Liquor Act 2003 (Section 21) (Croke Park, Dublin) Regulations 2011 ( S.I. No. 149 of 2011 ) are revoked. | ||||||||||||||||||||
SCHEDULE 1 | ||||||||||||||||||||
Maps referred to in Regulation 4. The areas of the designated national sporting arena referred to in Regulation 3 which are prescribed for the purposes of section 21(4)(a) of the Act of 2003 are indicated in red. | ||||||||||||||||||||
| ||||||||||||||||||||
SCHEDULE 2 | ||||||||||||||||||||
Maps referred to in Regulation 5. The areas of the designated national sporting arena referred to in Regulation 3 which are prescribed for the purposes of section 21(4)(b) of the Act of 2003 are indicated in blue. | ||||||||||||||||||||
| ||||||||||||||||||||
| ||||||||||||||||||||
GIVEN under my Official Seal, | ||||||||||||||||||||
26 August, 2025. | ||||||||||||||||||||
PATRICK O’DONOVAN, | ||||||||||||||||||||
Minister for Culture, Communications and Sport. | ||||||||||||||||||||
| ||||||||||||||||||||
Map No. 1 | ||||||||||||||||||||
Level 1 | ||||||||||||||||||||
| ||||||||||||||||||||
Map No. 2 | ||||||||||||||||||||
Level 2 | ||||||||||||||||||||
| ||||||||||||||||||||
Map No. 3 | ||||||||||||||||||||
Level 3 | ||||||||||||||||||||
| ||||||||||||||||||||
Map No. 4 | ||||||||||||||||||||
Level 4 | ||||||||||||||||||||
| ||||||||||||||||||||
Map No. 5 | ||||||||||||||||||||
Level 5 | ||||||||||||||||||||
| ||||||||||||||||||||
Map No. 6 | ||||||||||||||||||||
Level 6 | ||||||||||||||||||||
| ||||||||||||||||||||
Map No. 7 | ||||||||||||||||||||
Level 7 | ||||||||||||||||||||
| ||||||||||||||||||||
Map No. 8 | ||||||||||||||||||||
Level 7 (Upper) | ||||||||||||||||||||
| ||||||||||||||||||||
Map No. 9 | ||||||||||||||||||||
Level 1 | ||||||||||||||||||||
| ||||||||||||||||||||
Map No. 10 | ||||||||||||||||||||
Level 2 | ||||||||||||||||||||
| ||||||||||||||||||||
Map No. 11 | ||||||||||||||||||||
Level 3 | ||||||||||||||||||||
| ||||||||||||||||||||
Map No. 12 | ||||||||||||||||||||
Level 4 | ||||||||||||||||||||
| ||||||||||||||||||||
Map No. 13 | ||||||||||||||||||||
Level 5 | ||||||||||||||||||||
| ||||||||||||||||||||
Map No. 14 | ||||||||||||||||||||
Level 6 | ||||||||||||||||||||
| ||||||||||||||||||||
Map No. 15 | ||||||||||||||||||||
Level 7 | ||||||||||||||||||||
| ||||||||||||||||||||
Map No. 16 | ||||||||||||||||||||
Level 7 (Upper) | ||||||||||||||||||||
|